logo
  • Home
  • Chi Siamo
  • Cosa Facciamo
  • Immobili
  • Dove Lavoriamo
  • Blog
  • Valuta il tuo immobile
  • Contatti

Villetta schiera in Vendita a Susegana (TV) Via Mandre 213

Via Mandre

Prezzo di vendita:

€ 335.000,00

Codice:

773PDP

  • Camere

    3
  • Bagni

    2
  • Garage

    1
  • Anno costruzione

    1985
  • Mq area

    200
  • Mq giardino

    120
  • Classe

    D

Descrizione

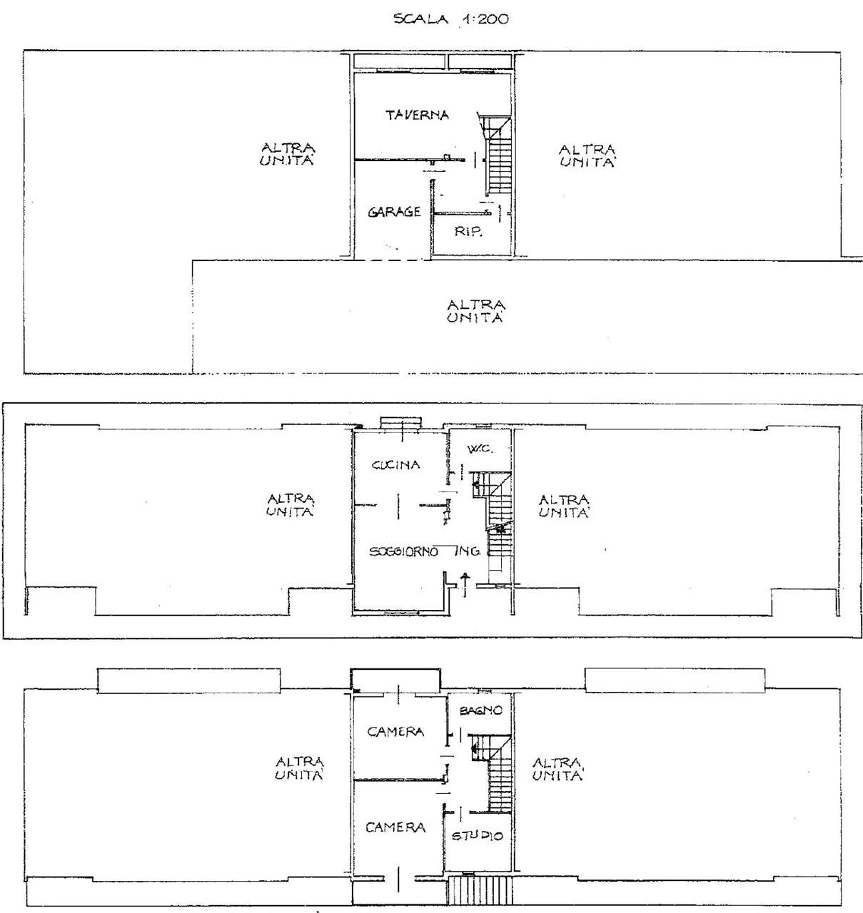
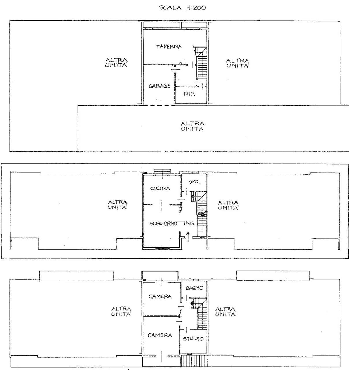
GOTTARDO Vivi Casa ti propone in vendita questa Villetta a schiera situata in una zona tranquilla e residenziale, questa casa rappresenta un'opportunità unica per chi desidera vivere in un ambiente accogliente e ben curato. Nelle foto non si percepisce la cura e la passione con cui è stata fatta ristrutturazione nel 2023. La villa è disposta su 3 livelli, che offrono ampi spazi e una distribuzione funzionale. Al piano terra, troviamo un soggiorno luminoso e spazioso, una cucina abitabile e un bagno con doccia. Al primo piano, si trovano le camere da letto: due camere doppie e una camera singola e altro bagno con doccia. La proprietà dispone inoltre nel interrato della taverna, con una sala hobby, una lavanderia e il garage. All'esterno, un curato giardino privato che offre lo spazio ideale per momenti di relax e convivialità. Non perdere l'opportunità di acquistare questa proprietà esclusiva nel cuore del paese e quindi vicina a tutti i servizi. Non ci sono spese condominiali. NB: Al fine di tutelare la privacy e la riservatezza del proprietario, non si identifica l'esatta ubicazione dell'immobile.

Caratteristiche principali

  • TIPOLOGIA: Vendite
  • CATEGORIA: 4 o più locali
  • ACQUA CALDA: Autonoma
  • ARREDI: Possibilità
  • BALCONI: Uno
  • FONTE ENERGETICA: Metano
  • GIARDINO: Privato
  • GRADO: Medio
  • INFISSI: PVC Doppio Vetro
  • ORIENTAMENTO: Sud Ovest
  • PANORAMA: Vista Aperta
  • PAVIMENTO BAGNO: Gres Porcellanato
  • PAVIMENTO CUCINA: Gres Porcellanato
  • PAVIMENTO GIORNO: Gres Porcellanato
  • PAVIMENTO NOTTE: Parquet
  • POSIZIONE: Centro
  • RISCALDAMENTO: Autonomo
  • SERRAMENTI: Ottimo
  • STATO IMMOBILE: Ottimo
  • TERRAZZI: Uno
  • TIPO CUCINA: Abitabile
  • TIPO IMPIANTO: Radiatori
  • TIPO RISCALDAMENTO: Caldaia
  • TIPO SOGGIORNO: Soggiorno

Foto

internal
internal
internal
internal
internal
internal
internal
internal
internal
internal
internal
internal
internal
internal
internal
internal
internal
internal
internal
internal
generic
generic

Mappa

user-img

Luca Gottardo

  • Telefono: 0422 1942460

  • Mobile: 340 219 5571

  • WhatsApp: 340 219 5571

  • Email: agenzia@gottardovivicasa.it

Vedi tutti i miei immobili
WhatsApp Chiama
logo
  • Home
  • Chi Siamo
  • Cosa Facciamo
  • Immobili
  • Dove Lavoriamo
  • Blog
  • Valuta il tuo immobile
  • Contatti
sale

Dicono di noi

Peccato ci siano solo cinque stelle , posso solo dire bene di quest agenzia e un ringraziamento a Luca per avermi seguito dall inizio alla fine della vendita del mio immobile ma sopratt la rapidità di trovare un acquirente… grazie

Barbara Amadio

Nonostante la situazione sia stata complessa e piena di imprevisti, Luca ha saputo avere equilibrio nel gestire le varie istanze degli eredi facendo squadra con le parti maggiormente collaborative

Giovanni Pasinato

Grande professionalità onestà e correttezza caratterizzano l'agenzia Immobiliare Gottardo Vivi Casa. Ho avuto la possibilità di conoscere il responsabile, Luca, persona competente, seria e sincera contornata da una gradevole simpatia. Consigliatissimo

Domenico Pallotta

Agenzia con personale molto gentile, titolari molto competenti disponibili e sempre pronti a risolvere ogni problema. Consiglio.

Gianni Biscaro

Sono estremamente grato a Luca dell’impeccabile professionalità, disponibilità e competenza che mi ha dimostrato nella vendita di un immobile. Lavorando con attenzione ai dettagli e informale cordialità, Luca ha anche dimostrato grande onestà e supporto in ogni passo del procedimento.

Giacomo Ganassini

Ho acquistato un immobile attraverso questa agenzia. Luca si è rivelato un ottimo professionista, sempre disponibile e preciso. Sono stata piacevolmente stupita dall'ottimo servizio: seguono sia il venditore che l'acquirente in ogni dettaglio. Si occupano loro anche del passaggio delle utenze. I video per presentare l'immobile sono fatti bene e rendono bene l'idea prima del sopralluogo. Infine aggiungo che non manca mai un sorriso e una battuta simpatica, che non guastano mai.

Monica Bettio

Ci siamo rivolti a questa agenzia immobiliare per locare un immobile commerciale, con la loro professionalità hanno selezionato un locatario fidato, ci hanno seguito in tutta la fase contrattuale e hanno soddisfatto appieno le nostre richieste. Agenzia sicuramente da consigliare. Eco3 srl

Enio Zanatta

Luca è un professionista serio e preparato, e mi ha assistito egregiamente nella vendita di un immobile commerciale. Tempi rispettati e budget quasi raggiunto, il tutto con dedizione e umanità. Consigliato assolutamente.

Paolo Pietrobon

Ci siamo rivolti a Luca per l'acquisto di un immobile visto in un video presentazione su Facebook e abbiamo apprezzato molto che già dal video abbiamo potuto visitare virtualmente l'immobile che ci interessava. Siamo stati seguiti passo passo durante tutto il procedimento di acquisto e lo ringrazio molto per la sua pazienza e gentilezza e siamo rimasti molto soddisfatti di tutto. Consigliatissimo se dovete vendere o acquistare un immobile.

Samanta M.

Professionali e super disponibili! Siamo proprio contenti del nostro acquisto! :) li consigliamo per avverare anche il vostro sogno!

Giulia Carniato

Abbiamo acquistato l'appartamento dei nostri sogni tramite questa agenzia. Luca ci ha accompagnato in questo percorso in modo impeccabile, sempre pronto a chiarirci ogni dubbio. Gli annunci video delle case sono molto utili per farsi una prima idea se è la casa giusta in base alle proprie esigenze e di come sono organizzati gli spazi. Consigliamo a chi voglia acquistare casa di rivolgersi a loro!

Gaia Marc

Contattaci

0422 1942460
+39 340 21 95 571
agenzia@gottardovivicasa.it

Via Cicogna, 14 31050 Ponzano Veneto (TV)

footer-logo

Rilassati, alla tua casa ci pensiamo noi

Link veloci
  • Home
  • Chi Siamo
  • Cosa Facciamo
  • Immobili
  • Agenzia Immobiliare Treviso
  • Blog
  • Contatti
Ricerca per Caratteristichle Immobili
  • Appartamento (6)
  • Villa (5)
  • Vendite (56)
  • Giardino privato (29)
  • Accesso disabili (7)
  • Orientamento Sud Ovest (7)
  • Terrazzo (23)
  • Riscaldamento autonomo (37)
  • Box auto (41)

© 2026 - Gottardo Vivi Casa - P.IVA 05054610265 | Privacy Policy | Cookie Policy

Powered by dt.web